家族構成や環境の変化に合わせて、今より暮らしやすい家にしたい。

- 子供が大きくなってきたので、子供部屋を作りたい。
- 子供が独立して、部屋が余った。
- 結婚した子供夫婦と同居するので、増築したい。
- 一人暮らしをしている親と、近々同居したいと考えている。

家族構成や環境の変化に家を対応させなければならない状況が出てきます。
選択肢としては、リフォーム(増築、減築含む)・建て替え・転居などが考えられますが、ご家族の状況、家の状態などによって最善の方法がかわります。
あわてて結論(建て替えかリフォームかどっち!?)から考えるのではなく、何の為にするのか、どうすればみんなが快適に暮らせるのかを、この機会にゆっくり考えてみてください。
たとえば、「二世帯になるので、キッチンと浴室をあらたに設置したい」
それは、2つの世帯がそれぞれの生活スタイルを守りながら幸せに暮らすため、ですよね。けれども、キッチンと浴室を別々にすることで、せっかく一緒に暮らしている2つの世帯がまったくふれあいをを持てなくなってしまうことだってあるんです。
それなら、改装工事にかかる費用を外食や温泉旅行に回して、家族の絆を深めたほういいかもしれません。
建築工事を請け負って収益をあげている会社が言うのはおかしいかもしれませんが、一番大事な部分を忘れないでほしいのです。
私たちが願うのは、幸せ作りのお手伝い。本当に必要とされる工事を手がけて、皆様に明るい暮らしをお届けしたいと考えています。

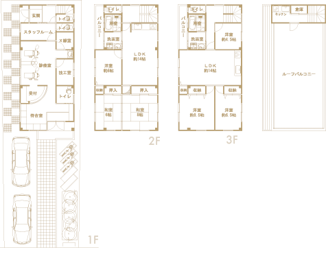
「歯科医院の開業を検討中、自宅(賃貸)、両親の家(所有)という状況を想定し、ひとつにまとめたプランを作成しました。
住宅部分と歯科医院とは、入り口を分離させています。従業員室からは、住居に直接移動できるようにしてあるので、休憩や食事時間もフルに活用できます。
また仕事に要するスペースを総面積の2分の1以下にしてあるため、住宅ローンを利用することも可能です。建築費用を抑えるため、エレベーターの設置を控えましたが、ご希望により設置したプランや高齢者対応のプランも作成いたします。

| 敷地面積 | 193.66平米 |
|---|---|
| 建物面積 | 79.38平米 |
| 建ぺい率 | 40.98% |
| 容積率 | 110.83% |
| 備考欄 | 免疫住宅・ウレタン遮熱工法 |






